K17/Vielfältige Nutzbarkeit
Vielfältig nutzbare Zimmer lassen sich für diverse Bedürfnisse einrichten. Die Flexibilität von Nutzungen soll nicht nur durch die Grösse und Proportion, sondern auch durch eine sinnvolle Anordnung der Tür- und Fensteröffnungen eines Zimmers ermöglicht werden.
Methodik
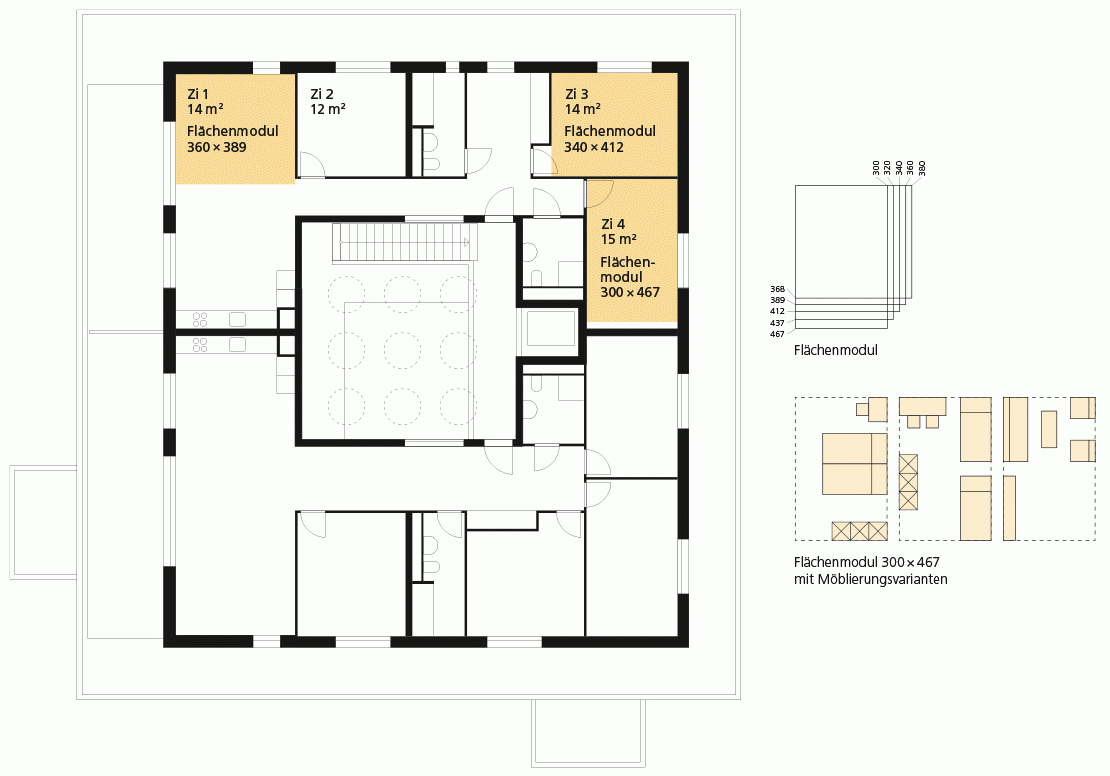
Als Messhilfe für die quantitative Beurteilung dient das Flächenmodul mit unterschiedlichen Grundnutzungen und exemplarischen Möbelanordnungen. Gemessen werden die Anzahl Zimmer, in denen das 14 m2 grosse Flächenmodul Platz findet (Länge × Breite von 380 × 368 cm bis 467 × 300 cm). Eine Seite des Flächenmoduls muss an einem mindestens 300 cm langen Wandstück ohne Tür- und Fensteröffnung liegen. Weist ein Zimmer einen unregelmässigen Grundriss auf, muss das Flächenmodul dennoch mit seiner gesamten rechteckigen Grundfläche platziert werden können. Ergänzend zur Quantität können bei Qualität und Innovation Punkte angerechnet werden.
Quantität
Qualität
Alle Zimmer sind breiter als 300 cm.
(1 Punkt)
Mindestens 50 % der Zimmer liegen an einer lärmberuhigten Seite, z. B. im hof- / rückseitigen Teil des Grundstücks.
(1 Punkt)
Neben dem Flächenmodul von 14m2 gibt es ein zusätzliches Flächenangebot von ≥ 5m2.
(1 Punkt)
Innovation
Beschreiben Sie die Innovation, die das Wohnobjekt bezüglich K17/Vielfältige Nutzbarkeit auszeichnet. Schematische Darstellungen und ergänzende Informationen dienen dem Nachweis der Innovation.
(1 Punkt)
Maximale Punktzahl: 4 Punkte
FAQ
Inhaltsverzeichnis
Anfragen zum WBS
Druckversion des WBS bestellen:

