C21/Options d’ameublement de la zone de rangement
Grâce à des surfaces suffisantes pour accueillir des meubles avec les dégagements nécessaires, les zones d’utilisation permettent des aménagements flexibles et individualisés et/ou peuvent être équipées d’éléments de cuisine supplémentaires ou d’appareils tels que lave-linge ou lave-vaisselle.
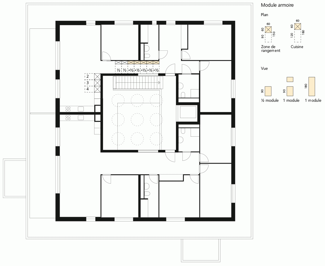
Méthode
Pour l’évaluation quantitative, on dénombre les modules complémentaires aux équipements de base et/ou ceux pouvant être installés. Un module armoire de 60× 60×180 cm avec un dégagement de 90 cm de profondeur (120 cm dans la cuisine) sert d’outil de mesure. Au moins une des faces du module armoire doit pouvoir être placée contre une paroi. Dans la cuisine, les modules peuvent aussi présenter une largeur de 55 resp. 27.5 cm. On compte pour moitié les modules de 30 à 60 cm de largeur et de profondeur, ainsi que ceux de 60 cm de large et de 90 à 150 cm de haut en raison de pans mansardés ou de fenêtres placées en hauteur.
Quantité
Qualité
En complément des équipements de base, au moins une armoire encastrée de 60 cm de profondeur avec un dégagement de 90 cm, une largeur de 120 cm et une hauteur d’au moins 180 cm est disponible à l’intérieur du logement.
(1 Point)
Le logement offre un local de rangement séparé, p.ex. un réduit.
(1 Point)
Dans l’espace extérieur privé et/ou dans la zone intermédiaire un local de rangement ou une armoire encastrée est à disposition.
(1 Point)
Innovation
Décrivez l'innovation qui caractérise le logement en matière de C21/Options d’ameublement de la zone de rangement. Des représentations schématiques et des informations complémentaires servent à prouver le caractère innovant du projet.
(1 Point)
Nombre maximal de points : 4 points

