StadtErle, Bâle
L’acquisition de la partie est de l’ancienne gare de marchandises de la Deutsche Bahn à Bâle a permis à la Fondation Habitat de soustraire tout un quartier à la spéculation et de le développer en octroyant des terrains en droit de superficie à des maîtres d’ouvrage d’utilité publique. L’une des treize parcelles a été attribuée à la coopérative Zimmerfrei pour son projet StadtErle, qui vise la construction d’espaces financièrement abordables destinés à l’habitat, au travail et à la vie communautaire pour des personnes aux profils variés.
Description de l'objet
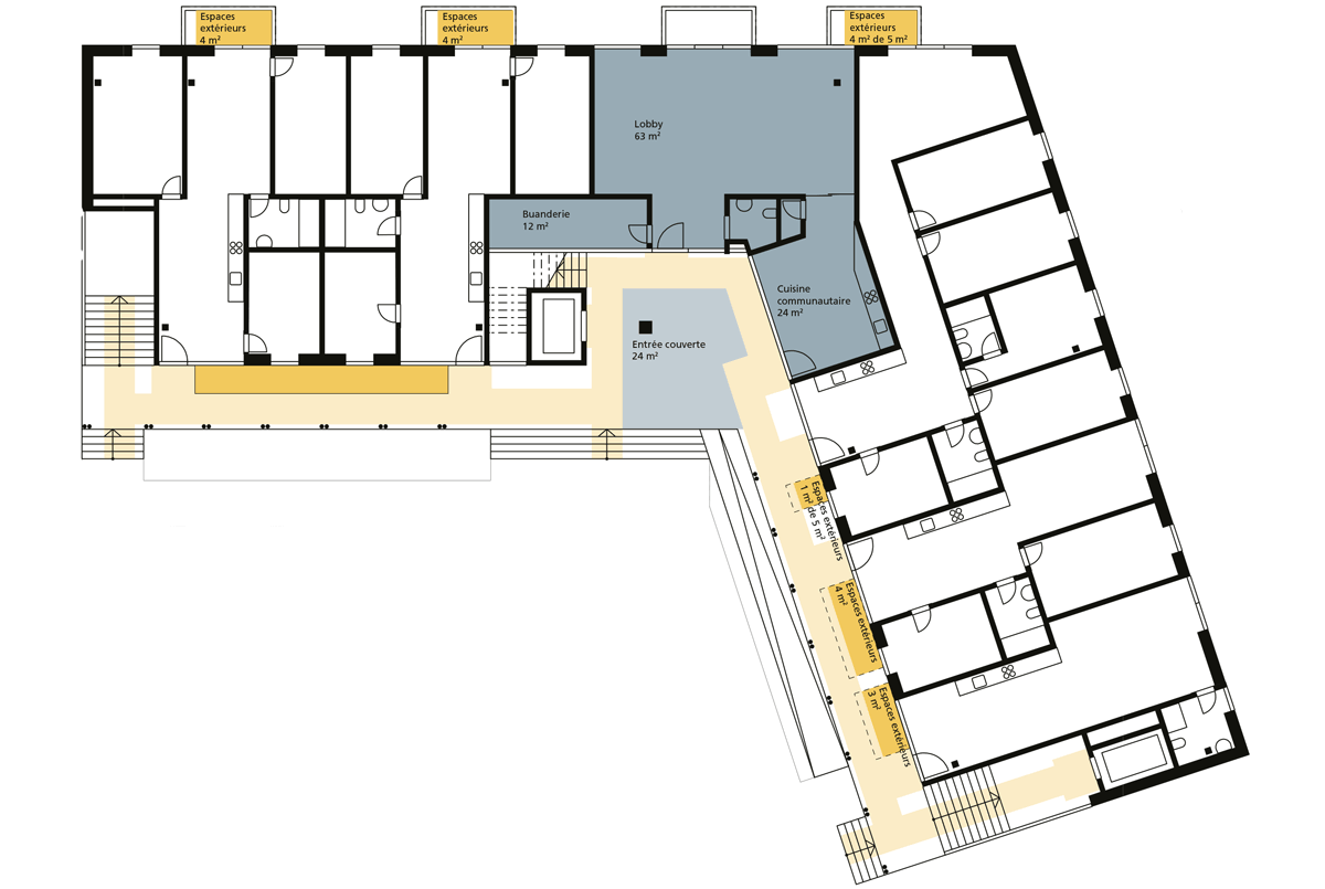
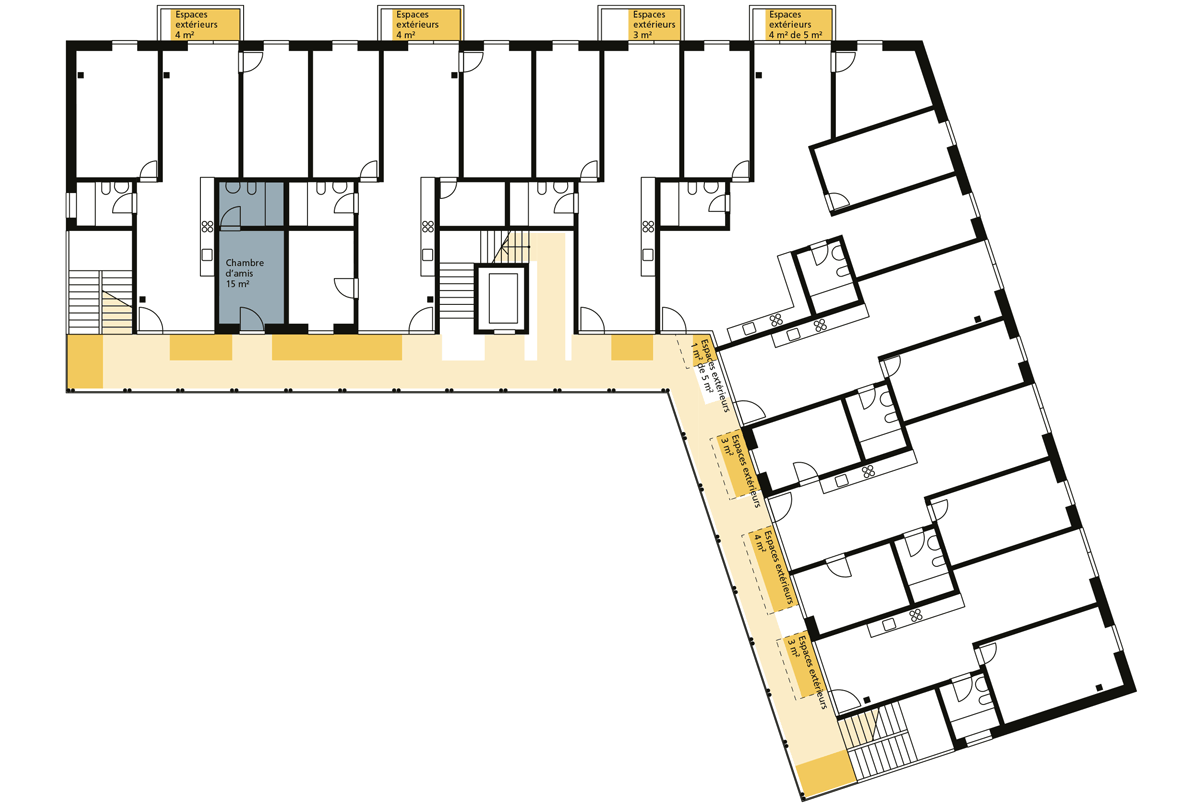
La façade extérieure de l’immeuble donne sur un grand parc (Erlenmattpark), tandis que la partie intérieure, pourvue de coursives à chaque étage, donne sur la cour intérieure du complexe (Erlenmatthof), laquelle favorise les échanges entre les habitants. Au rez-de-chaussée surélevé, un espace central ouvert, relié à la cour intérieure par un large escalier, joue le rôle à la fois de place et d’entrée couverte avec interphone et ascenseur (espace commun central). Il donne accès au lobby (local communautaire), à la cuisine commune et à la buanderie. Les coursives permettent d’accéder aux logements et aux escaliers de secours situés aux extrémités des deux ailes du bâtiment. Tous les escaliers permettent de rejoindre la terrasse du dernier étage, dont l’entretien et l’utilisation se font en commun. D’autres équipements communautaires, comme une chambre d’amis, une salle de musique et un atelier, sont répartis entre les différents étages. Les 33 appartements sont conçus dans un souci d’économie d’espace, les matériaux choisis témoignant eux aussi de la volonté de maîtriser les coûts.
Potentiel
La coordination des utilisations se fait à l’échelle de tout le quartier est. Bien que la coopérative StadtErle ne soit pour l’instant qu’un immeuble purement résidentiel, elle recueille un point pour le critère C2/Utilisations complémentaires en raison de son potentiel. Les différentes utilisations sont réglées par le plan de durabilité du quartier Erlenmatt. Une crèche se trouve par exemple dans le bâtiment voisin. C’est dans cette planification des utilisations à l’échelle du quartier que réside le potentiel. Le même principe explique que le critère C5/Offres d’espaces libres recueille lui aussi un point pour son potentiel. L’évaluation se fonde là aussi sur le quartier dans son ensemble : le parc Erlenmatt, qui sépare les zones Erlenmatt Est et Erlenmatt Ouest, constitue un vaste espace de loisirs dont les habitants de StadtErle profitent eux aussi.
Innovation
Le projet StadtErle se démarque par des solutions créatives dans de nombreux domaines et reçoit donc un total de cinq points à l’innovation, soit le nombre maximal possible.
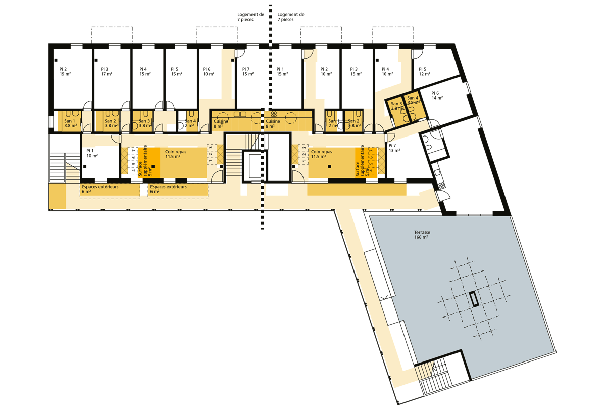
Préparer les surfaces du logement regroupé
Pour pouvoir être évalués selon les critères du SEL, les logements regroupés et les grands ménages doivent être scindés en unités plus petites. Ce fractionnement se fonde sur la logique de leur agencement (taille, nombre et configuration des pièces), la taille et l’équipement des locaux sanitaires et de la cuisine, la surface nette habitable et l’intégration dans le contexte global du projet. Les logements partiels sont d’abord évalués séparément, puis l’on calcule la moyenne obtenue. Le logement regroupé de StadtErle est ainsi subdivisé en deux appartements de sept pièces dont les sanitaires sont plutôt exigus et les cuisines spacieuses. À côté des coins repas, un module surfacique supplémentaire peut être intégré.












