C17/Flessibilità di utilizzazione
I locali utilizzabili in modo flessibile possono essere arredati in base alle varie esigenze. La flessibilità dell’utilizzazione va resa possibile non soltanto da fattori come le dimensioni e le proporzioni, ma anche da una disposizione intelligente dei vani delle porte e delle finestre di un locale.
Metodologia
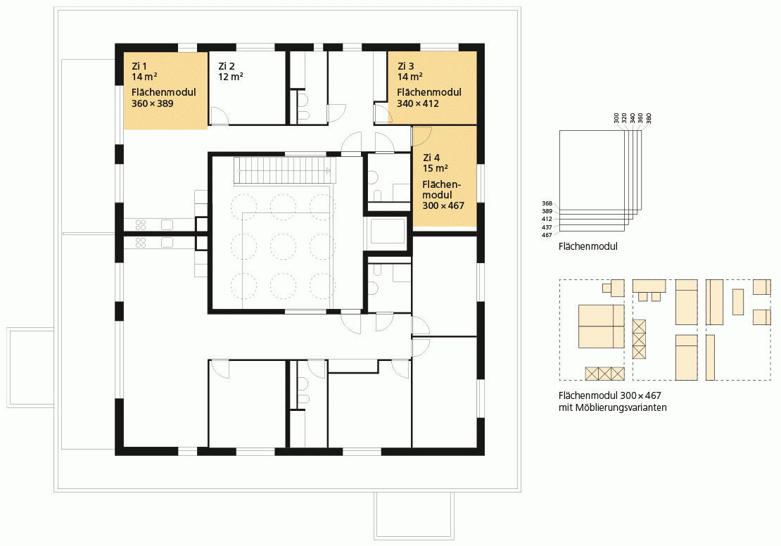
Come metro di misura per la valutazione quantitativa va utilizzato il modulo-superficie con i diversi utilizzi di base e gli esempi per la disposizione di mobilio. Si contano i locali in cui trova posto il modulo-superficie di 14 m² (lunghezza × larghezza da 380 × 368 cm a 467 × 300 cm). Un lato del modulo-superficie deve essere posizionato in corrispondenza di una parete lunga almeno 300 cm, priva di porte o finestre. Se il locale presenta una pianta irregolare, il modulo-superficie deve comunque poter essere posizionato con tutta la sua superficie rettangolare.
Quantità
Qualità
Tutti i locali attestano una larghezza superiore ai 300 cm.
(1 Punto)
Almeno il 50 % dei locali si trova su un lato protetto dal rumore, p. es. corte o retro della parcella.
(1 Punto)
Oltre al modulo-superficie di 14 m² vi è un’altra superficie supplementare ≥ 5 m².
(1 Punto)
Innovazione
Descrivete l'innovazione che caratterizza l'alloggio in termini di C17/Flessibilità di utilizzazione. Rappresentazioni schematiche e informazioni aggiuntive servono a dimostrare il carattere innovativo del progetto.
(1 Punto)
Numero massimo di punti: 4 punti

