StadtErle, Basilea
L’acquisto di fondi situati nella parte orientale dell’ex stazione merci della Deutsche Bahn, a Basilea, e l’assegnazione del relativo diritto di superficie a diversi committenti di utilità pubblica, allo scopo di impedire operazioni speculative, ha permesso alla fondazione Habitat di edificare un quartiere formato da 13 costruzioni. Una di queste è stata rilevata dalla cooperativa Zimmerfrei, per realizzarvi spazi abitativi, lavorativi e di socializzazione destinati a diverse tipologie di inquilini: il progetto StadtErle.
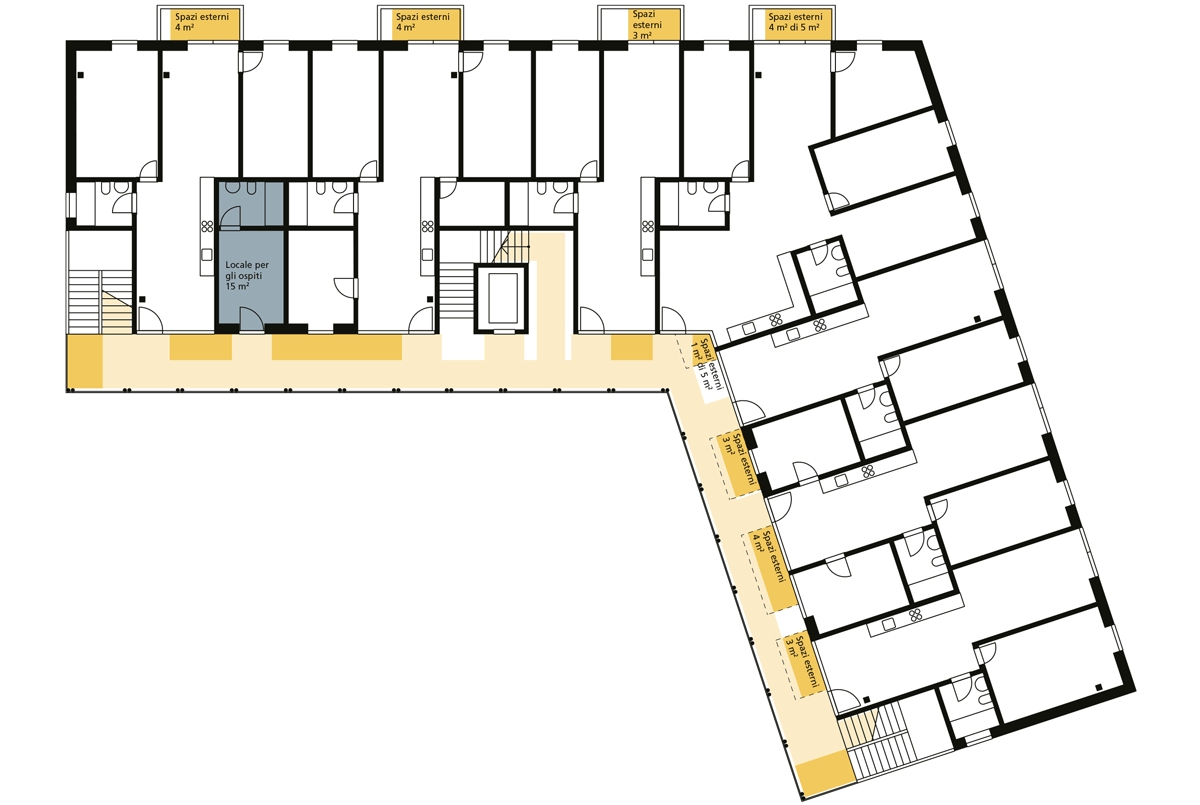
Descrizione dell'oggetto
L’edificio in questione guarda verso il magnifico parco di Erlenmatt; le balconate presenti su ogni piano della costruzione danno su una corte interna e offrono agli inquilini possibilità di incontro e di scambio.
Il piano rialzato della parte centrale della corte interna, a cui si accede mediante un’ampia scalinata, è uno spazio aperto in cui si trova l’ingresso coperto, con i citofoni e l’ascensore, da cui si può raggiungere la loggia e la cucina (spazi comuni) e la lavanderia. Le balconate conducono ai diversi appartamenti e alle scale di sicurezza poste alle estremità di entrambe le ali dell’edificio, da cui si può arrivare alla terrazza sul tetto (spazio comune). Altri spazi comuni si trovano ai vari piani dell’edificio: un locale per gli ospiti, uno per la musica e un’officina. I 33 appartamenti sono stati progettati e realizzati tenendo conto delle esigenze di contenimento dei costi.
Potenziale
Su tutta l’area comprendente i fondi, le destinazioni d’uso sono ben definite. Quella di StadtErle è esclusivamente abitativa. Ciononostante ha ottenuto un punto nella categoria potenziale, attribuito secondo il criterio C2/Destinazioni d’uso complementari. Il piano per la sostenibilità dell’area Erlenmatt prevede diverse destinazioni d’uso. Ad esempio, un edificio situato nelle vicinanze ospita anche un asilo nido. Si tratta perciò del potenziale legato all’uso condiviso e coordinato delle infrastrutture. Queste considerazioni valgono anche per il punto assegnato secondo il criterio C5/Offerta di ampi spazi iberi. Anche in questo caso si tratta del potenziale inerente alla presenza di altre strutture nelle vicinanze. Il parco Erlenmatt, che divide i due comparti Est e Ovest di Erlenmatt, rappresenta un’importante area di svago, a disposizione anche dei locatari di StadtErle.
Innovazione
In diversi settori la qualità del progetto StadtErle è ottima, come confermato dal punteggio massimo (cinque punti).
Pianificazione delle superfici abitative dei cluster
Per consentire una valutazione secondo il SVA, i cluster abitativi e gli alloggi più grandi vengono suddivisi in unità più piccole. La suddivisione si basa sui criteri di progettazione (dimensioni, numero e disposizione dei locali), sulle dimensioni e la dotazione dei locali sanitari e della cucina, sulla superficie abitativa netta, nonché sul quadro progettuale complessivo. Ai fini della valutazione, le sottounità abitative vengono considerate separatamente; in seguito si calcola una media. Il cluster di StadtErle è stato suddiviso in due appartamenti da sette locali: la dotazione sanitaria risulta piuttosto scarsa, mentre le cucine sono di livello ottimale. Oltre alla zona pranzo è possibile inserire uno spazio aggiuntivo.












