StadtErle, Basel
Die Stiftung Habitat hat mit dem Erwerb des östlichen Teils des ehemaligen Güterbahnhofs der Deutschen Bahn in Basel die Gelegenheit bekommen, einen Stadtteil zu entwickeln. Der Boden soll durch die Vergabe im Baurecht an verschiedene gemeinnützige Bauträger der Spekulation entzogen werden. Einen dieser 13 Bausteine konnte die Genossenschaft Zimmerfrei übernehmen und darauf mit dem Grundsatz, bezahlbare Räume für Wohnen, Arbeiten und Gemeinschaft für diverse Menschen zu schaffen, ihr Projekt StadtErle entwickeln.
Objektbeschrieb
Die Aussenseite des Gebäudes ist zum grosszügigen Erlenmattpark hin ausgerichtet, während die Innenseite dank den Laubengängen auf allen Geschossen den siedlungsinternen Erlenmatthof mitgestaltet. Dieser innere Hof unterstützt den Austausch unter den BewohnerInnen massgeblich.
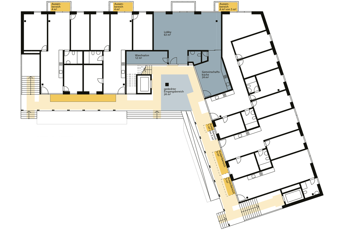
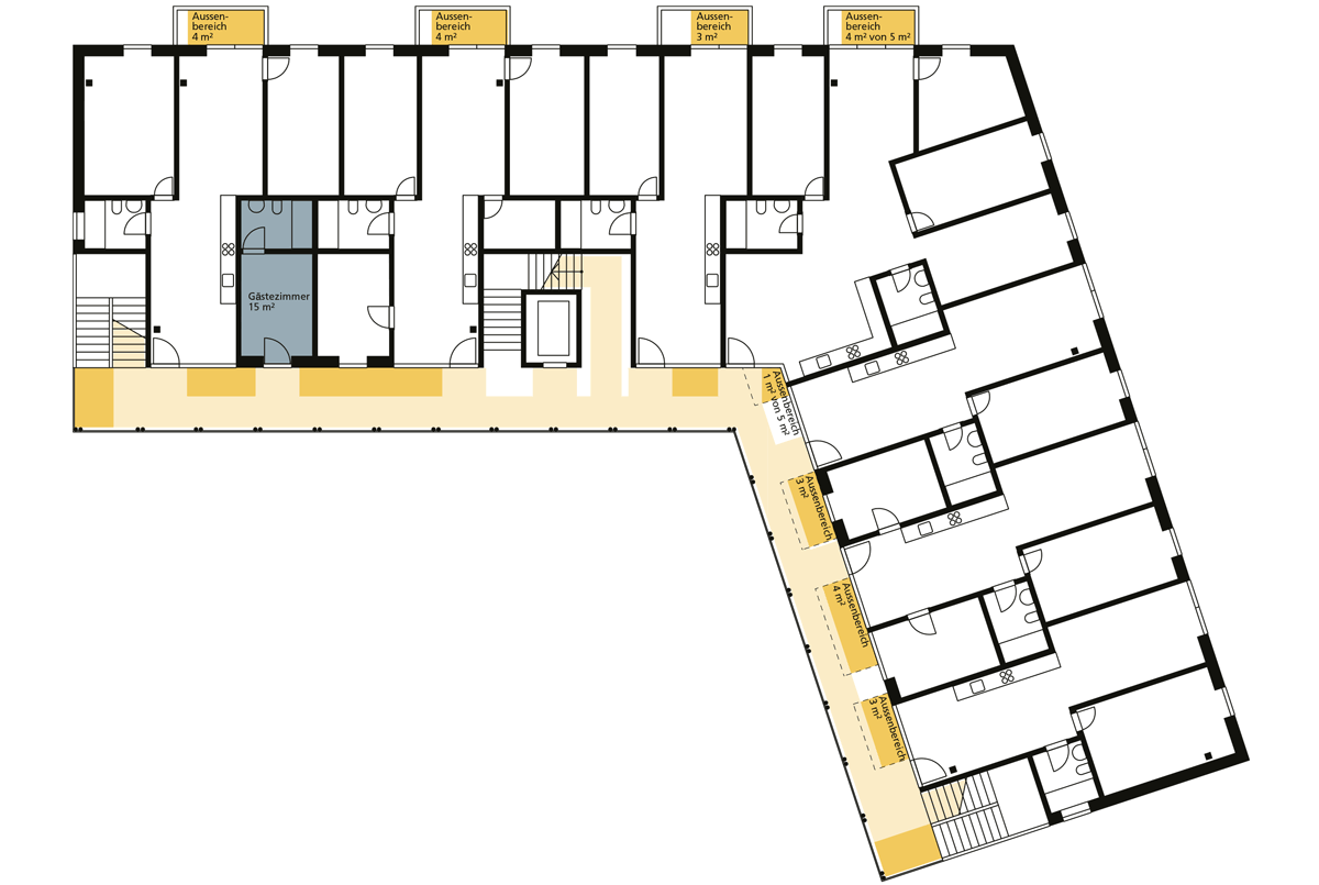
Der im Innenhof mit einer breiten Treppe erschlossene zentrale Bereich im Hochparterre ist Platz und gedeckter Eingang mit Sonnerie und Lift zugleich (Hausallmend). Von hier aus werden die Lobby (Gemeinschaftsraum), die Gemeinschaftsküche und der Wachsalon erschlossen. Die Laubengänge führen zu den Wohnungen und zu den Fluchttreppenhäusern am Ende der beiden Gebäude-flügel. Über alle Treppenhäuser kann die gemeinschaftlich unterhaltene und genutzte Dachterrasse erreicht werden. Weitere gemeinschaftliche Einrichtungen wie das Gästezimmer, der Musikraum und eine Werkstatt befinden sich auf unterschiedlichen Geschossen. Nicht nur die Grundrisse der insgesamt 33 Wohnungen sind sparsam ausgelegt, auch beim Materialkonzept wurden die Aspekt der Finanzierbarkeit berücksichtigt.
Potential
Die Nutzungen auf dem gesamten Areal Ost sind aufeinander abgestimmt. Obwohl nun die StadtErle ein reines Wohngebäude ohne ergänzende Nutzungen ist, erhält es bei der Bewertung K2/Ergänzende Nutzungen einen Punkt beim Potential. Im Nachhaltigkeitskonzept des Areals Erlenmatt wurden die diversen Nutzungen definiert, eine Kita beispielsweise ist gleich im Nachbarsgebäude untergebracht. Das Potential wird deshalb darin gesehen, dass die Nutzungen nachbarschaftlich organisiert werden. Dem gleichen Prinzip folgt der Punkt unter Potential bei K5/Grossflächiges Freiraumangebot. Bei diesem Kriterium wird wiederum die Nachbarschaft miteinbezogen. Der Erlenmattpark zwischen der Erlenmatt Ost und West bietet so ein grosszügiges Freiraumangebot, welches auch von der Bewohnerschaft der StadtErle mitbenutzt werden kann.
Innovation
Die StadtErle sticht in mehreren Bereichen mit ausgezeichneten Ansätzen hervor und erreicht so die maximal möglichen 5 Innovationspunkte.
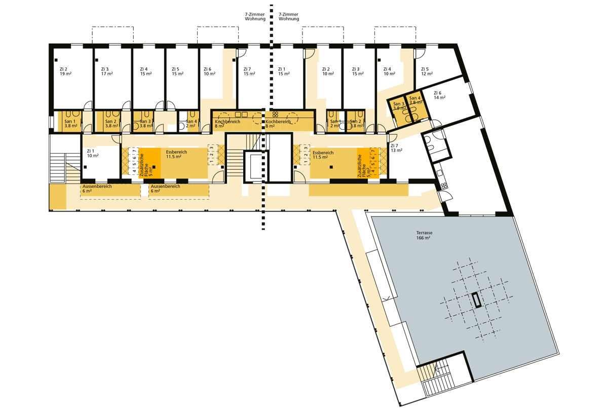
Flächen Vorbereiten bei der Clusterwohnung
Clusterwohnungen und Grosshaushalte werden in kleinere Einheiten unterteilt, um sie mit dem WBS bewertbar zu machen. Kriterien für die Definition der Aufteilung sind die Logik des Grundrisses (Zimmergrösse, -zahl und -organisation), Grösse und Ausstattung der Sanitärräume und der Küche, die Nettowohnfläche sowie die Einbettung in den Gesamtkontext des Projekts. Zur Beurteilung werden die Teilwohnungen separat bewertet, anschliessend wird der Durchschnitt gebildet. Die Clusterwohnung der StadtErle wird in zwei 7-Zimmerwohnungen unterteilt, wobei die Sanitärräume eher knapp und die Küchen optimal bemessen sind. Neben dem Essbereich kann noch ein zusätzliches Flächenmodul eingefügt werden.
Inhaltsverzeichnis
Anfragen zum WBS
Druckversion des WBS bestellen:












